For sale: an apartment with a total area of 90 m2, located in the peaceful town of Callao Salvaje, within the quiet and well-maintained residential complex Puesto al Sol.
This property is an excellent option for those seeking space and the opportunity to design the interior according to their own needs and preferences. The apartment features a fully finished kitchen and bathroom, while the remaining areas are left for individual completion, with the option to finalize the works according to an agreed project.
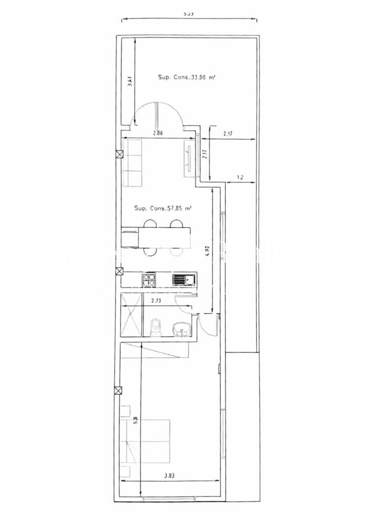
The layout is spacious and functional, offering one comfortable bedroom, and an additional highlight is the 33 m2 terrace, ideal for relaxing, creating a chill-out area, or setting up an outdoor dining space.
The Puesto al Sol complex offers residents two swimming pools and leisure areas, providing comfortable conditions for rest in a peaceful and well-kept environment. The location combines tranquility with everyday convenience — the beach is approximately 1 km away, with quick access to the main road and the TF-1 motorway, as well as close proximity to grocery stores and other essential amenities.
An ideal property for those seeking comfort, peace, and a modern lifestyle, as well as for investors looking to tailor the property to their own vision.
Community fee: €86/month
IBI: €239/year
Asten Realty reference: 9899





















